
やまやコミュニケーションズ(本社:福岡県糟屋郡篠栗町)では、福岡市中央区白金に、一棟貸しの宿泊施設「白金はなれ」を、4月18日(土)にグランドオープンすると発表しました。
やまやは、「九州から世界へ、やまやスタンダードを。」というビジョンのもと、「Made in KYUSHU」を掲げ、九州の食文化を世界へ広める取り組みを行っています。
今回新たに展開する「白金はなれ」は、やまやがこれまで育んできた食文化を“滞在体験”として拡張する、やまや初の宿泊事業です。

同施設は、“街にひらかれた、湯屋のはなれ”というコンセプトのもと、白金という街そのものを味わうための拠点として設計されています。
宿の中ですべてを完結させるのではなく、街へと足を運び、食を楽しみ、人と出会う― その体験を滞在の中心に据えています。
都市の中心にありながら、宿泊者専用の湯の空間と静かな滞在空間を備え、街での時間と宿でのひとときがゆるやかにつながる、新たな都市滞在のかたちを提供。
特徴
「白金はなれ」の中心には、宿泊者専用の湯屋を設置。かつて人々が自然に交流した“湯屋”の記憶を現代の一棟貸しスタイルの宿泊体験として再解釈。
「白金はなれ」を拠点に、街や食を湯屋で語らう― 単なるリラクゼーションではなく、人と人、そして街とつながる場として設計されています。





一棟貸し×無人運営による高いプライベート性
レセプションを設けない無人運営を採用し、非対面でのチェックインを実現。一棟貸しならではのプライベート空間で、グループや家族で気兼ねなく過ごせる環境が整えられています。
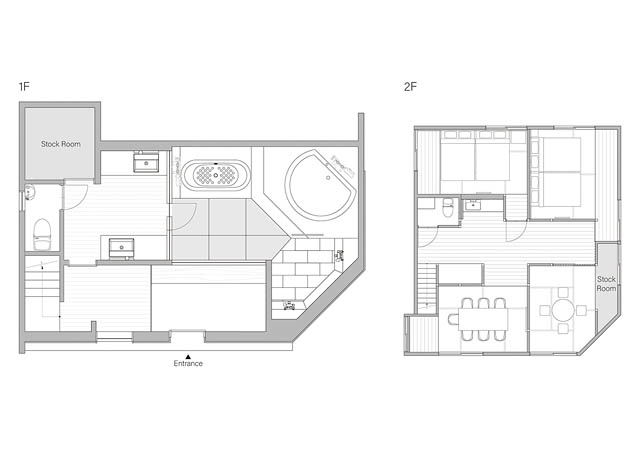
1階には内湯2槽(エアブロー機能付き)の湯処を備えており、ゆっくりと湯に身を委ねる至福のひとときを堪能でき、2階は寝室3室とダイニング。日本ベッド社製の上質なマットレスを備えたダブルベッド4台と敷き布団3組で、最大11名まで宿泊可能です。
やまや総本店と連携した“食”体験
食に向き合うやまやの姿勢を体現する旗艦店「やまや総本店」と連携。宿内で完結させず、街へ出て食を楽しむことで、宿泊と食体験をゆるやかにつなぎます。
また、5月15日(金)より、やまや総本店にて朝食提供の開始も予定しており、今後は朝の時間帯においてもやまやならではの食体験を楽しめるよう展開されます。
施設概要



▼施設名
白金はなれ
▼所在地
福岡県福岡市中央区白金1丁目6-1
福岡市地下鉄七隈線「薬院駅」から徒歩6分
地図はこちら
▼建物形態
戸建て一棟貸し
▼定員
最大11名
▼運営形態
無人運営
非対面チェックイン
設備・アメニティ

▼1階 湯屋
浴室(内湯2槽 ※エアブロー機能付き)、洗面脱衣室
▼2階 寝室・滞在スペース
寝室3室、ダイニング(ダブルベッド4台、敷き布団3組)
▼共用設備
液晶テレビ、電子レンジ、電気ケトル、冷蔵庫、空気清浄機、加湿器、ウォーターサーバー、ミニバー(有料)
▼アメニティ
スリッパ、浴衣、館内着、足袋、歯ブラシ、カミソリ、ボディタオル、コットン・綿棒セット、ヘアゴム、ヘアブラシ
▼バスアメニティ
シャンプー、コンディショナー、ボディソープ、クレンジングオイル、化粧水、乳液、フェイスソープ、バスソルト
予約は公式サイト内の宿泊予約ページよりどうぞ。宿泊料金は、宿泊日およびプランにより異なります。
この記事の情報は4月10日(金)時点での予定であり、内容は予告なく変更になる場合があります。